Neem nu contact op. Bel 0592-205140

Oosterpark 65

9404 BE Assen

€ 245.000 k.k.

Woonoppervlakte
91m2

Bouwjaar
1953

Omschrijving

91 m² | Maisonnette | 3 slaapkamers | 2 badkamers | Garagebox van ruim 14 m²

Op een aantrekkelijke locatie in Assen Oost, op loopafstand van het NS-station en het stadscentrum, ligt deze ruime en goed onderhouden maisonnette met vrij uitzicht over een groene parkachtige omgeving met vijverpartij. De woning beschikt over o.a. 3 slaapkamers, 2 badkamers een berging én een vrijstaande garagebox van ruim 14 m².

Assen Oost is een prettige en groene woonwijk met een gevarieerde bebouwing. Alle dagelijkse voorzieningen zijn in de directe omgeving aanwezig, waaronder het complete winkelcentrum Vredeveld. Ook het Amelterbos en het buitengebied liggen nabij, terwijl het centrum van Assen en het station binnen enkele minuten te voet bereikbaar zijn.

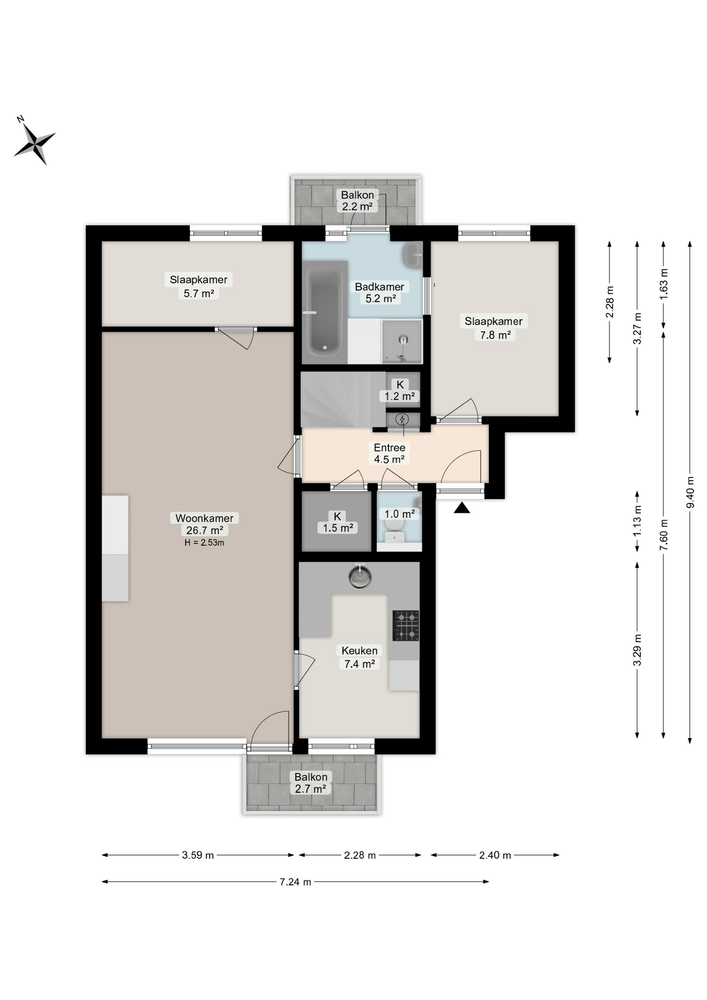
Indeling:
Tweede verdieping:
Entree/hal met toilet, meterkast en praktische inbouwkast. Vanuit de hal is de eerste slaapkamer (ca. 8 m²) bereikbaar, voorzien van een badkamer en suite met douche, wastafel, ligbad en toegang tot het balkon aan de voorzijde.
De lichte woonkamer van ca. 27 m² beschikt over een balkon met vrij uitzicht over de vijver en het groen. Vanuit de woonkamer zijn een werk-/slaapkamer en de keuken bereikbaar. De keuken is voorzien van diverse inbouwapparatuur. Vanuit de hal leidt de trap naar de verdieping.

Derde verdieping:
Deze gehele verdieping is in 2025 vernieuwd. Hier bevindt zich een royale 3e slaapkamer van ca. 13 m² met groot dakraam en een tweede badkamer met douche, wastafelmeubel, handdoekenradiator en sanibroyeur.

Bijzonderheden:
- 3 slaapkamers en 2 badkamers
- Actieve VvE, bijdrage € 133,21 per maand
- Grotendeels voorzien van dubbele beglazing en kunststof kozijnen
- Volledig vernieuwde bovenverdieping (2025)
- Vrijstaande garagebox en fietsenberging aan de achterzijde van het complex

Let op:
- Standaard waarborgsomregeling van toepassing
- Niet-zelfbewonings-, ouderdoms- en asbestclausule van toepassing
- Snelle aanvaarding mogelijk

Kenmerken

  • Bouwvorm: Bestaande bouw
  • Daktype: Zadeldak
  • Energieklasse: E

Deze woning is al verkocht door ben-s.nl!

Wilt u ook uw woning door een makelaar van ben-s laten verkopen? Vul dan het onderstaande formulier in.