Neem nu contact op. Bel 0592-205140

Boslelie 27

9408 LT Assen

€ 395.000 k.k.

Woonoppervlakte
121m2

Perceelopervlakte
184 m2

Bouwjaar
2008

Soort bouw
EENGEZINSWONING

Omschrijving

In de geliefde en kindvriendelijke woonwijk Kloosterveen staat deze ruime en goed onderhouden hoekwoning met energielabel A+. De woning beschikt onder andere over 12 zonnepanelen (2022), een in 2023 gerenoveerde badkamer, een diepe tuin op het oosten, een buitenberging en een eigen oprit aan de voorzijde. Het geheel is gebouwd in 2008 en staat op een perceel van 184 m².

De woning ligt rustig aan de rand van de wijk, in een straat met uitsluitend bestemmingsverkeer. Het wijkwinkelcentrum van Kloosterveen bevindt zich op korte afstand. Daarnaast zijn er meerdere basisscholen, speelvoorzieningen en goede openbaar-vervoersverbindingen in de directe omgeving.

Indeling:

Begane grond:
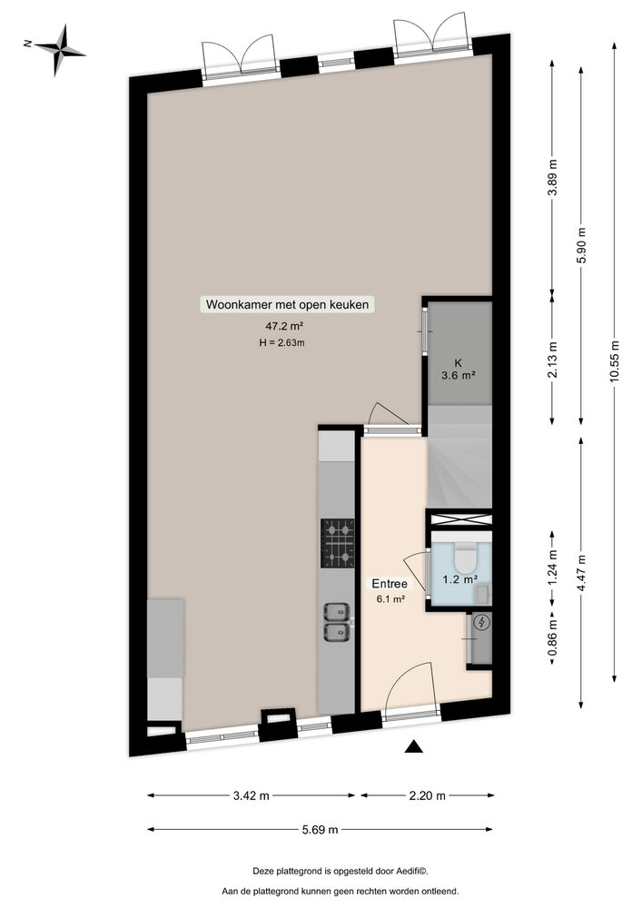
Entree/hal met garderobehoek, meterkast en toilet. De lichte woonkamer met open keuken heeft een totale oppervlakte van ruim 47 m² en beschikt over openslaande deuren naar de onderhoudsvriendelijke tuin. Onder de trap bevindt zich een praktische provisiekast.
De open keuken is uitgerust met een fornuis met oven, een koel-/vriescombinatie en een vaatwasser en biedt volop kastruimte. Daarnaast is er voldoende ruimte voor het plaatsen van een royale eettafel.

Eerste verdieping:
Ruime overloop met Solartube voor extra daglicht. Vanaf hier toegang tot drie volwaardige slaapkamers van circa 8, 12 en 13 m², de badkamer en een royale was-/bergruimte met opstelling van de cv-ketel.
De badkamer is in 2023 gerenoveerd en uitgevoerd met een inloopdouche, dubbel wastafelmeubel en een tweede toilet.

Tuin:
De onderhoudsvriendelijke tuin ligt op het oosten, biedt veel privacy en is via de zijkant bereikbaar. De stenen berging is voorzien van elektra.

Bijzonderheden
- Energielabel A+
- 12 zonnepanelen (2022)
- Badkamer gerenoveerd in 2023
- CV-ketel voor warm water en verwarming (2024)
- Rustige ligging aan de rand van Kloosterveen
- Straat met uitsluitend bestemmingsverkeer
- Ruime oprit met plaats voor twee auto’s
- Geen aardbevingsschade geclaimd

Kenmerken

  • Woonhuistype: Hoekwoning
  • Bouwvorm: Bestaande bouw
  • Daktype: Plat dak
  • Energieklasse: A_p

Deze woning is al verkocht door ben-s.nl!

Wilt u ook uw woning door een makelaar van ben-s laten verkopen? Vul dan het onderstaande formulier in.