Neem nu contact op. Bel 0592-205140

Bosbraam 37

9408 LD Assen

€ 449.000 k.k.

Woonoppervlakte
142m2

Perceelopervlakte
260 m2

Bouwjaar
2009

Soort bouw
EENGEZINSWONING

Omschrijving

Ruimte, comfort en duurzaamheid, alles komt samen in deze verrassend royale hoekwoning aan de rand van Kloosterveen!

Aan de rand van de geliefde wijk Kloosterveen staat deze verbrede en uitgebouwde hoekwoning met energielabel A+++. Dankzij de warmtepomp (2023), 8 zonnepanelen (2023) en airco (2025) woon je hier duurzaam, comfortabel en helemaal klaar voor de toekomst, met alle voorzieningen om de hoek.

De woning ligt op een ideale plek: vlak bij het winkelcentrum, diverse basisscholen, sportvoorzieningen en de natuur. Direct bij de bouw is de woning over de volledige breedte vergroot en aan de achterzijde uitgebouwd, wat zorgt voor opvallend veel leefruimte. De hoge plafonds versterken het gevoel van ruimte nog eens extra.

Indeling:
Begane grond:
Entree/hal met toilet met fonteintje en meterkast (vernieuwd in 2023). Als je doorloopt, kom je in de royale woonkamer met openslaande deuren naar de tuin en een open keuken met fraai composieten blad en inbouwapparatuur, zoals een vaatwasser (2022), combi-oven, inductiekookplaat (2025) en afzuigkap. Daarnaast is er een praktische trapkast. In de hal neem je de trap omhoog naar de...

Eerste verdieping:
Overloop met aan je linkerhand de 1e slaapkamer van bijna 7 m² en daarnaast de 2e slaapkamer van bijna 15 m². Aan je rechterhand vind je de 3e slaapkamer van circa 15 m² en de nette badkamer met douche, wastafelmeubel en tweede toilet. Op de overloop neem je de trap omhoog naar de...

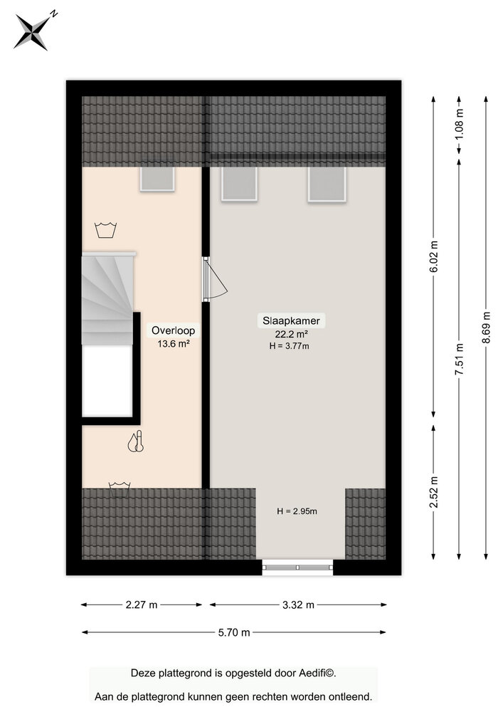
Tweede verdieping:
Ruime overloop met aansluiting voor de wasmachine, de opstelling van de warmtepomp en een zeer ruime slaapkamer van ruim 22 m² met dakkapel aan de voorzijde en twee dakramen aan de achterzijde. Wil je liever meer kamers? Dan kun je hier eenvoudig een vijfde slaapkamer creëren.

Tuin:
Via de openslaande deuren in de woonkamer is de tuin te bereiken. Fraai aangelegd met meerdere terrassen en altijd een plekje in de zon. Er is een achterom, maar je kunt ook langs de woning de tuin in. Achterin de tuin staat een houten berging met elektra. Voor de woning ligt een oprit met plek voor twee auto’s.

Bijzonderheden:
- Energielabel A+++
- Vanuit de bouw verbreed en uitgebouwd
- Gasloos
- Meterkast vernieuwd (2023)
- Verwarming en warm water middels warmtepomp (2023)
- Airco (2025)
- 8 zonnepanelen á 400 WP (2023)
- Voorzien van rolluiken en horren
- Aanvaarding in overleg, voorkeur midden juni 2026.

Kortom: deze woning heeft alles wat je zoekt: ruimte, comfort, een duurzame toekomst én een fijne plek in een levendige wijk. Hier kun je zonder klussen zó intrekken en jarenlang met plezier wonen!

Kenmerken

  • Woonhuistype: Hoekwoning
  • Bouwvorm: Bestaande bouw
  • Daktype: Zadeldak
  • Energieklasse: A_ppp

Deze woning is al verkocht door ben-s.nl!

Wilt u ook uw woning door een makelaar van ben-s laten verkopen? Vul dan het onderstaande formulier in.