Neem nu contact op. Bel 0592-205140

Gouwe 94

9406 GS Assen

€ 199.000 k.k.

Woonoppervlakte
60m2

Perceelopervlakte
1842 m2

Bouwjaar
1965

Omschrijving

Starters opgelet!
Ben jij op zoek naar een instapklaar appartement in Assen? Dan is Gouwe 94 precies wat je zoekt!

Gelegen op de eerste verdieping en voorzien van 2 slaapkamers, kunststof kozijnen met dubbele beglazing, een lichte woonkamer met uitzicht op het groen en een moderne badkamer uit 2023, biedt dit appartement alles wat je nodig hebt om direct comfortabel te wonen. Dankzij de grote raampartijen komt er aan beide kanten volop daglicht binnen, wat zorgt voor een heerlijk ruimtelijk en prettig woongevoel. Ook beschikt het appartement over een eigen balkon waar je rustig kunt genieten van de buitenlucht.

De woning ligt in de rustige wijk Lariks West, met alle voorzieningen binnen handbereik. Binnen tien minuten fietsen sta je in het centrum van Assen, en op loopafstand vind je het wijkwinkelcentrum Nobellaan met o.a. een Jumbo, bakker en kapper. Voor natuurliefhebbers liggen het Lariksbos en het Asserbos op korte afstand, ideaal voor een wandeling of een moment van ontspanning.

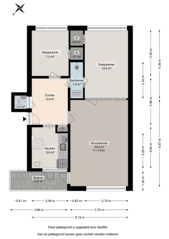
Indeling:
Entree/hal met toilet, meterkast en toegang tot bijna alle vertrekken.
Aan de linkerzijde bevindt zich de 1e slaapkamer (ca. 7 m²) met vaste kast. Aan de rechterzijde ligt de keuken met kookplaat, oven, afzuigkap en ruimte voor overige apparatuur, plus toegang tot het balkon van bijna 5 m² met uitzicht op het groen.
De lichte woonkamer (ca. 21 m²) biedt eveneens toegang tot het balkon. De 2e slaapkamer (ca. 12 m²) ligt aan de achterzijde en grenst, net als de hal, aan de in 2023 gerenoveerde badkamer, voorzien van wastafelmeubel, handdoekenradiator en regendouche.

Bijzonderheden
- Energielabel C
- Kunststof kozijnen met dubbele beglazing
- 2 slaapkamers
- Inpandige berging op de begane grond
- Badkamer vernieuwd in 2023
- Actieve VvE, bijdrage €108,60 per maand
- SNN-subsidie voor nieuwe cv-ketel aangevraagd (overdraagbaar aan koper)
- Gewenste aanvaarding: januari 2026

Kortom: een verzorgd en instapklaar appartement op een fijne, groene locatie, perfect voor starters die comfortabel willen wonen nabij het centrum van Assen.

Wil je dit zelf ervaren? Maak snel een afspraak voor een bezichtiging!

Kenmerken

  • Bouwvorm: Bestaande bouw
  • Daktype: Plat dak
  • Energieklasse: C

Deze woning is al verkocht door ben-s.nl!

Wilt u ook uw woning door een makelaar van ben-s laten verkopen? Vul dan het onderstaande formulier in.