Neem nu contact op. Bel 0592-205140

Burgemeester Jollesstraat 16

9401 LE Assen

€ 725.000 k.k.

Woonoppervlakte
185m2

Perceelopervlakte
360 m2

Bouwjaar
1926

Soort bouw
EENGEZINSWONING

Omschrijving

Royaal en sfeervol wonen in Assen Oud-Zuid, op steenworp afstand van het centrum, het station en het Asserbos!

Dan is de Burgemeester Jollesstraat 16 absoluut een bezichtiging waard. Deze vrijstaande karakteristieke woning, gebouwd in 1926 onder architectuur in de stijl van de Amsterdamse School, combineert authentieke charme met modern wooncomfort. De woning beschikt onder meer over een royale woonkeuken, een sfeervolle en-suite woonkamer met openslaande deuren naar de groene en beschutte tuin rondom én vier slaapkamers en twee badkamers op de eerste verdieping. Daarnaast biedt de begane grond de mogelijkheid voor een kantoor of slaapkamer met eigen entree – ideaal voor praktijk aan huis of levensloopbestendig wonen.

De fraai aangelegde tuin, die rondom de woning ligt, ademt een parkachtige sfeer met een variatie aan zon- en schaduwplekken. Dankzij de ligging aan rustige doodlopende straten geniet u hier van maximale rust en privacy.

Met een energielabel B is de woning klaar voor de toekomst: er zijn 16 zonnepanelen aanwezig, evenals spouwmuurisolatie, grotendeels dubbel glas en vloerisolatie.

Assen Oud-Zuid staat bekend als een van de mooiste wijken van de stad. Naast de centrale ligging (op ca. 450 meter van het station en 800 meter van het centrum) biedt de buurt volop groen, goede voorzieningen en ontspanning op loopafstand. Denk aan theater, restaurants, cafés, de bioscoop, tennisclub en kinderboerderij in het Asserbos – allemaal dichtbij. En met de uitvalswegen zoals de A28 op een paar autominuten rijden bent u ook snel buiten de stad.

Een unieke kans op een bijzonder herenhuis met de grandeur van de jaren 20 en het comfort van nu.

Indeling
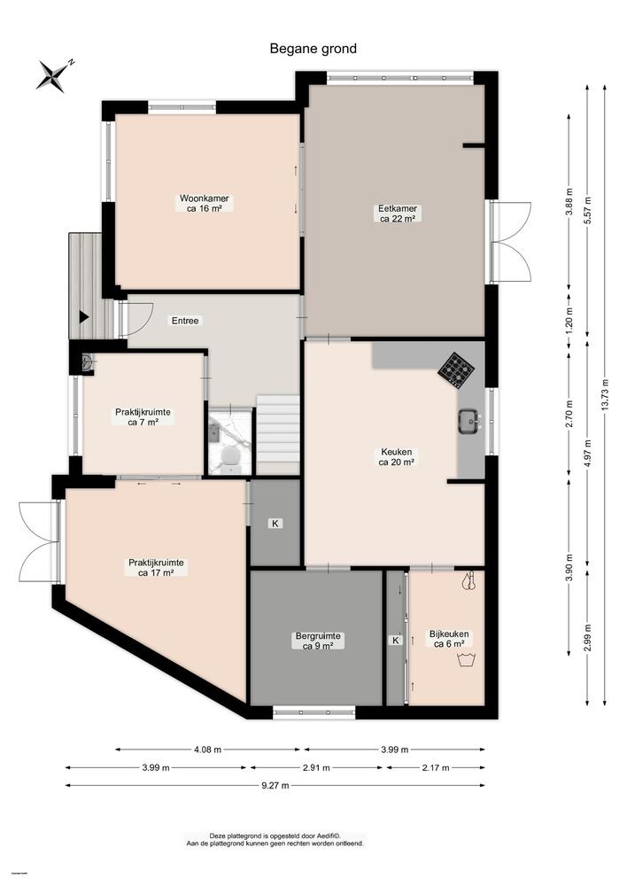
Begane grond:
De royale entree verwelkomt u met een klassieke terrazzovloer en prachtige glas-in-loodramen. Vanuit de hal bereikt u de sfeervolle woonkamer met suitedeuren, houten vloer, houtkachel en openslaande deuren naar de tuin. Dankzij grote raampartijen aan drie zijden geniet de ruimte van een uitstekende lichtinval. De aangrenzende woonkeuken is ruim, licht en uitgerust met diverse inbouwapparatuur. Aansluitend vindt u een praktische berging van ca. 9 m² en een bijkeuken met CV-opstelling en aansluitingen voor witgoed. Aan de voorzijde bevindt zich een multifunctionele ruimte met eigen entree, die ook binnendoor bereikbaar is. Deze ruimte is uitstekend geschikt als praktijkruimte, atelier, speelkamer of slaapkamer op de begane grond. Ook is deze desgewenst te gebruiken of te verhuren als studio of kantoor aan huis. Via de stijlvolle trapopgang met glas-in-loodramen bereikt u de eerste verdieping.

Eerste verdieping:
Overloop met toegang tot vier slaapkamers en twee badkamers. Aan de linkerzijde vindt u de badkamer met ligbad, inloopdouche, wastafel en tweede toilet, een 1e slaapkamer van ca. 8 m² en een 2e slaapkamer van ca. 12 m², beide voorzien van een vaste inbouwkast. Aan de rechterzijde de 3e ruime slaapkamer van ca. 16 m² met openslaande deuren naar een balkon van ca. 6 m², eveneens voorzien van vaste kasten en de 4e slaapkamer van ca. 16 m² beschikt over een eigen badkamer en-suite met douche en wastafel – ideaal voor grotere gezinnen of logés.

Buitenruimte:
De riante tuin rondom de woning is groen, verzorgd en biedt volop privacy. Dankzij de gunstige ligging op het zuiden is er altijd een plekje in de zon of schaduw te vinden. De oorspronkelijke oprit – nu ingericht als tuin – kan eenvoudig worden teruggebracht als parkeerplaats op eigen terrein.

Bijzonderheden:
- Energielabel B
- 16 zonnepanelen (2018)
- Voorzien van airconditioning
- Dak-, muur- en vloerisolatie
- Grotendeels dubbele beglazing (m.u.v. originele glas-in-loodramen)
- Mogelijkheid voor praktijk aan huis of slaapkamer op de begane grond
- Gemeentelijk monument
- 4 slaapkamers en 2 badkamers op de eerste verdieping

Kenmerken

  • Woonhuistype: Vrijstaande_woning
  • Bouwvorm: Bestaande bouw
  • Daktype: Plat dak
  • Energieklasse: B

Bezichtig deze woning.

Vul dit formulier in om direct een vrijblijvende bezichtiging in te plannen.